Notre brochure
Accueil > Appartements > 6 PIÈCES 161 M² LOCAL PROFESSIONNEL OU APPARTEMENTS DE 161M²
Appartements
Référence : V520031275

6 PIÈCES 161 M² LOCAL PROFESSIONNEL OU APPARTEMENTS DE 161M²

565 000 €
Saint-Raphaël
6 pièces 161m²
Vendu
Exclusivité

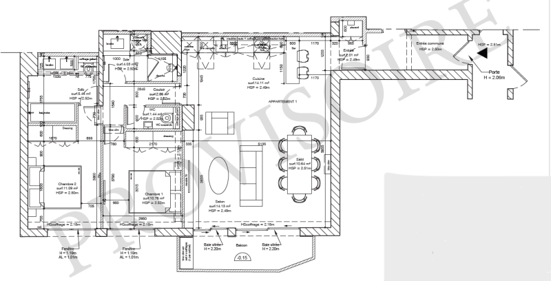
Les Agences du Sud - Cocoon Immobilier vous proposent sur le secteur de Saint-Raphaë un bien immobilier à fort potentiel dans le centre ville de St Raphael.Ne manquez pas cette opportunité ! Ce local professionnel de 161 m², situé dans un immeuble dans le centre ville de St raphael, il offre de nombreuses possibilités d’aménagement.

Ce bien peut être transformé en deux appartements de 80 m² chacun, avec entrée séparée et garage. Il suffit de rénover les pièces selon vos envies. Vous pourrez ainsi profiter d’un logement spacieux et lumineux, avec tout le charme du centre ville, ou bien louer ou vendre l’un des deux appartements pour rentabiliser votre investissement.5ce local bénéficie des autorisation nécessaire pour la transformation en appartements plan sur demande)

Ce local professionnel est idéalement situé dans le centre ville de St Raphael, à proximité de tous les commerces, services, transports et animations. Vous pourrez rejoindre la plage et le port en quelques minutes à pied ou en vélo. Vous apprécierez le dynamisme et la qualité de vie de cette ville balnéaire du Var, entre Cannes et Saint-Tropez.

N’attendez plus pour visiter ce bien rare sur le marché !

Nombre de pièces 6 Charges courantes annuelles 2100€ Taxe foncière 2300€ Surface habitable Carrez 161m² Parking/Garage 2 garages Étage 1/5 Ascenseur oui
Diagnostic énergétique
565 000 €
6 pièces 161m²
Ce bien vous intéresse ?
Plus d'informations
Contact & information